藍圈新材模塊化建筑裝配式房屋
要像造汽車一樣精準地制造房子--勒·柯布西耶
科技創新是推進一個企業前進發展基石。在建筑行業發展趨勢以及政策環境推動下,模塊化建筑這種全新的建房理念將成為住宅產業化的熱潮。而現在,這不僅僅是理念,更是一幢你看的到,摸得著的房子。

裝配式房屋之民宿
帶您體驗一個會呼吸的房子
民宿系列共3套房型,是藍圈打造的現代風格的裝配式住宅。從一居到三居室,功能選擇各部相同,可根據業主需求選擇。
這一系列的設計旨在通過【標準化設計、裝配式施工、一體化裝修】的方式,來實現建筑產品新形式、新理念、新措施的變化。
01、極簡二人小戶型
面積 | 35.8㎡
戶型 | 一層/一室一衛一景觀陽臺
設計師希望通過合理的空間布局,以及巧妙的設計構思,來重新詮釋現代住宅與自然完美融合的生活方式,真正做到簡約卻不簡單。

內部細節圖



02、家庭中戶型
面積 | 52.8㎡
戶型 | 一層/兩室一衛一景觀陽臺
這個戶型設計的重點在于加入了家庭親子房的元素,在保證家庭看護及交流的便利,還保證了各自擁有獨立的空間,為家庭出行提供方便。同時也滿足了多類人群的需求。

內部細節圖


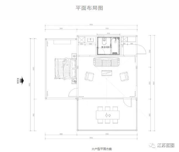
03、商務大戶型
面積 | 68.5㎡
戶型 | 一層/兩室一衛一景觀陽臺
這個戶型設計的重點在于加入了家庭親子房的元素,在保證家庭看護及交流的便利,還保證了各自擁有獨立的空間,為家庭出行提供方便。同時也滿足了多類人群的需求。

內部細節圖



一應俱全,更懂所需
住的不僅僅是房子,更是一種態度
模塊化建筑的優勢


科技風暴引領建材升級
公司地址
江蘇省鎮江市丹徒區谷陽東大道100號
聯系方式
13646139333
公司網站
http://m.sydztc.com
歡迎來電咨
